Italiano
2 Camere 2 Bagni 165 m2
Caratteristiche principali
Codice
V000897
Prezzo
110.000 EUR
Classe
VA
Locali
4
Altre caratteristiche e accessori
Stato Immobile
Da Ristrutturare
Grado
Medio
Lati Liberi
2
Tipo Soggiorno
Soggiorno
Tipo Cucina
Abitabile
Riscaldamento
Autonomo
Tipo Riscaldam.
Caldaia
Tipo Impianto
Radiatori
Serramenti
Da Sostituire
Pavim. Giorno
Marmo
Pavim. Notte
Moquette
Pavim. Cucina
Marmo
Pavim. Bagno
Ceramica
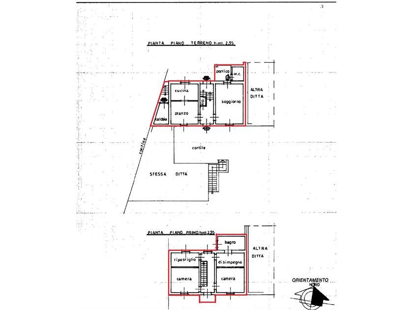
Cantù: vicinanze Bennet. In zona servita a poca distanza da tutti i principali servizi, propongo questa porzione di casa INDIPENDENTE DA TERRA A TETTO disposta due livelli abitativi. L'immobile necessita di una RISTRUTTURAZIONE e si sviluppa nel seguente modo: ampio soggiorno, zona pranzo, cucina separata e bagno. Tramite una scala interna si accede al 1° piano dove si trovano: 2 camere da letto matrimoniali con balcone, un bagno e 2 locali ad uso ripostiglio. In corpo staccato completa la proprietà un giardinetto nel quale è possibile ricavare dei posti auto. NO SPESE CONDOMINALI. Certificazione energetica in fase di richiesta. € 110.000. PER INFORMAZIONI: PALAZZOLO GABRIELE 3333910808. Seguiteci su Facebook alla pagina: Garma Immobiliare di Palazzolo Gabriele. Instagram: gabriele.palazzolo4. Sito internet:www.garmaimmobiliare.it
Cookie preference